VENTA - Balcarce / Catamarca - OF. PB c/patio en Inmuebles La Capital
+54 341 5329022Lunes a viernes de 9 a 18 hs.

VENTA - Balcarce / Catamarca - OF. PB c/patio

Locales comerciales y Oficinas en Venta Balcarce 330 - Of. 1 - Rosario

22 M2 -- -- -- 43000

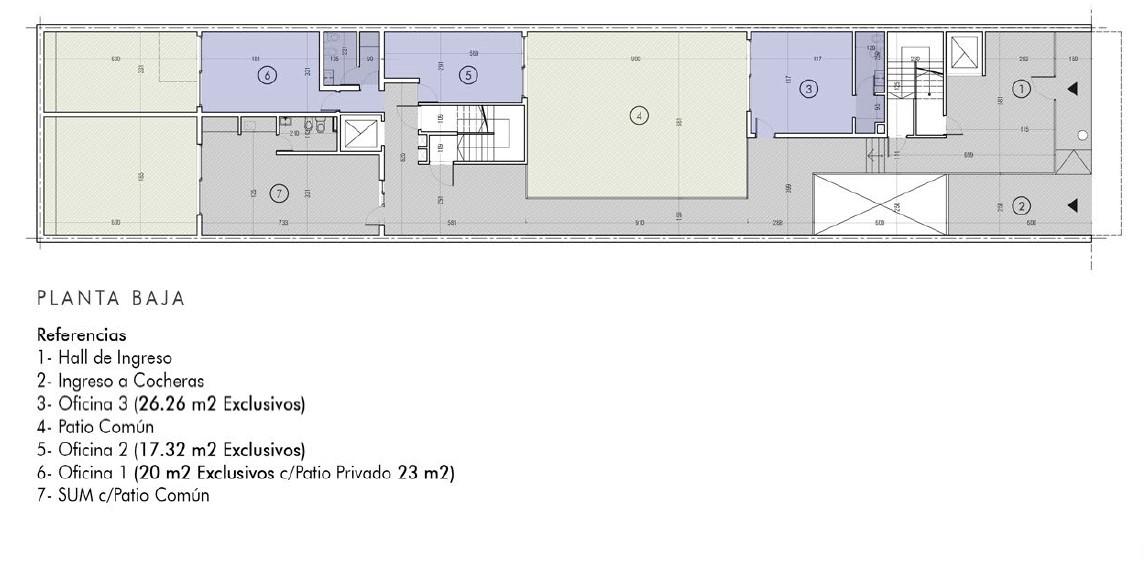
VENTA - OFICINA - PB - NUEVA - METROS BV. ORÑO - BALCARCE 330 - AMENITIES A metros de Bv. Oroño, en edificio a nuevo, excelente calidad  y diseño moderno, patio de uso exclusivo. Oficina en planta baja con patio de uso exclusivo de la unidad. En misma planta baja se localiza el baño y kitchenette de uso común para las oficinas y el quincho con parrillero,  En último piso piscina con solárium.   Coordine su visita de Lun a Vie de 8 a 17 hs al + 54 9 341 6642689. Nota: Actualmente alquilada $19.544.- (31/07/2025 - actualizac. ICL) - Información y medidas provistas aproximadas, las cuales se ratificarán con la documentación pertinente suministrada por organismos públicos. En estos casos, al igual que las fotografías ilustrativas, no comprometen contractualmente a nuestra empresa pues no son vinculantes ni contractuales.

Aviso en papel

3514 LOCALES COMERCIALES,INDUSTRIALES Y OFICINAS (C/V)
LCG INMOBILIARIA: Balcarce 330 - Of. 1 u$s47000 (3413540315)
Edición: 24 Mayo 2026- Identificador: #3053641

Ubicación

Balcarce 330 - Of. 1 - Rosario

Otras propiedades

Suscribite a nuestro Newsletter

Dejanos tu e-mail! Recibí ingresos de nuevos inmuebles, propiedades relacionadas con tus búsquedas y novedades del sector inmobiliario.