Local en Mercado comercial en Fisherton Financiación Oportunidad en Inmuebles La Capital
+54 341 5329022Lunes a viernes de 9 a 18 hs.

Local en Mercado comercial en Fisherton Financiación Oportunidad

Locales comerciales y Oficinas en Venta Av. Bernheim y Suindá - Rosario

145 M2 -- -- -- 188500

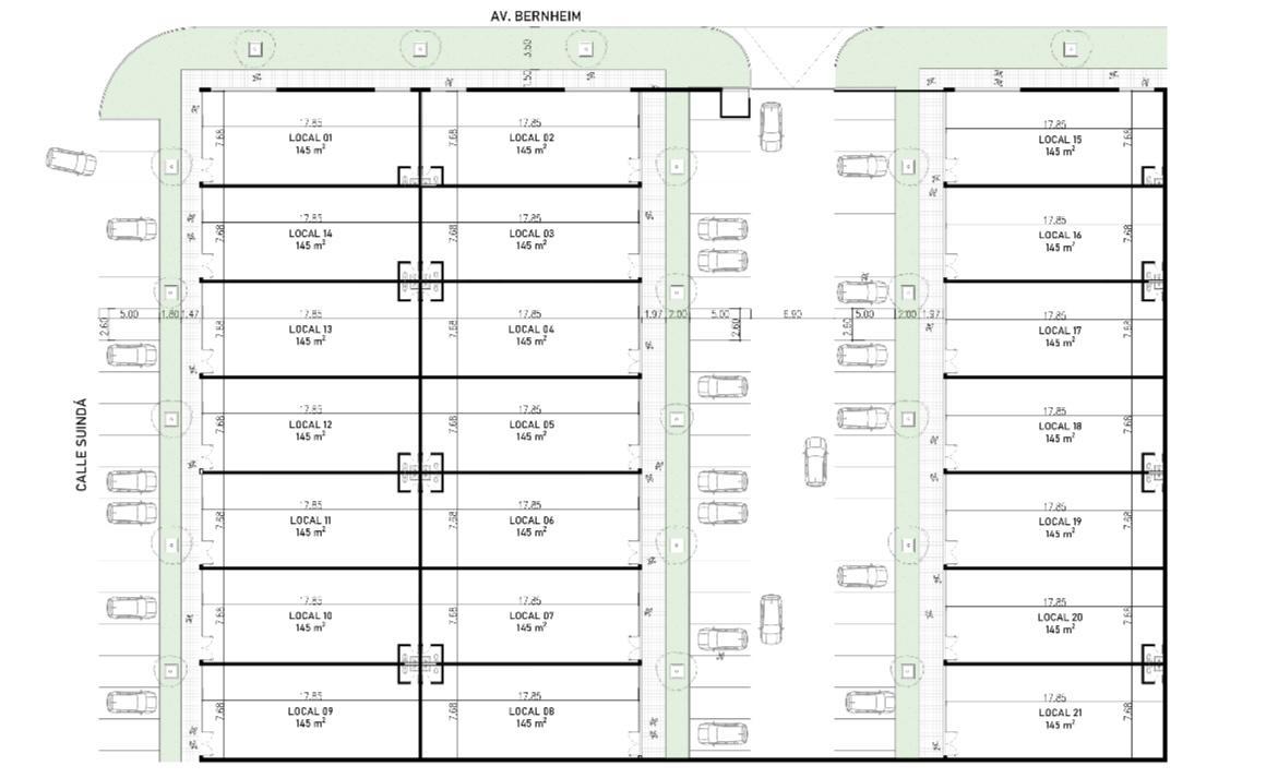
Mercado del Paso: Local en centro comercial al aire libre con estacionamiento privado, viene a generar un hito comercial en la zona de Tierra Nueva Fisherton, aglomerando distintos rubros comerciales en un punto estratégico, para convertirse en referencia para la nueva zona de condominios en Fisherton. El proyecto prevé áreas para estacionamiento exterior e interior, con acceso controlado mediante puesto de seguridad. Locales a la calle e internos al estacionamiento. Locales de 145 m2 con dimensiones ventanal del frente 5.00 x 3.00m de altura. Altura máxima de 6.50m. Altura mínima 4.50m. Piso interior de hormigón llenado Terminación exterior en ladrillos semi vistos Muro medianero exterior terminado en pintura impermeable Terminación interior en revoque fino pintado en latex blanco Se deja prevista la instalación de 1 aire acondicionado por local comercial Posibilidad de financiación.  Contáctanos para coordinar una visita. Código del inmueble: CLO7379789 Encontrá todas nuestras propiedades en: cccarlachiani. com. ar C.I. Mauro Carlachiani Mat. N° 280 *Toda la información y medidas provistas son aproximadas y deberán ratificarse con la documentación pertinente y no compromete contractualmente a nuestra empresa. Los gastos (Expensas, API, TGI, AGUAS, etc.) expresados, refieren a la última información recabada y deberán confirmarse. Fotografías no vinculantes ni contractuales.

Aviso en papel

3514 LOCALES COMERCIALES,INDUSTRIALES Y OFICINAS (C/V)
A Aba CC CARLACHIANI Negocios Inmobiliarios: Av. Bernheim y Suindá u$s188500 (4473658 3413350722)
Edición: 12 Abril 2026- Identificador: #3096370

Ubicación

Av. Bernheim y Suindá - Rosario

Otras propiedades

Suscribite a nuestro Newsletter

Dejanos tu e-mail! Recibí ingresos de nuevos inmuebles, propiedades relacionadas con tus búsquedas y novedades del sector inmobiliario.