Departamento piso exclusivo de 3 dormitorios con terraza y radiadores en Inmuebles La Capital
+54 341 5329022Lunes a viernes de 9 a 18 hs.

Departamento piso exclusivo de 3 dormitorios con terraza y radiadores

Departamento en Venta Entre Rios 1930 '12A - Rosario

136 M2 3 3 -- 255000

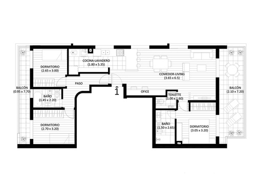
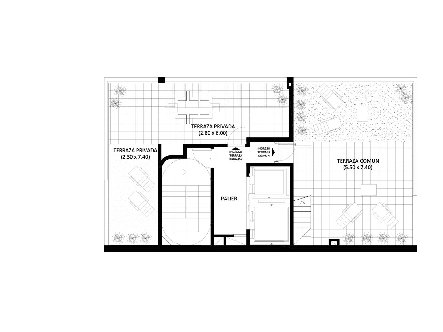
Departamentos de piso exclusivo con 3 dormitorios, amplia cocina con lavadero sectorizado, living-comedor extenso con espacio para gran escritorio, doble balcón, en ambas orientaciones, 3 baños (uno en suite, otro secundario y toilette de recepción), ventilación cruzada y azote propia. Excelente calidad constructiva con un riguroso control de obra, pisos de excelente calidad, aberturas de aluminio A30 con DVH, puertas blindadas, cocina con mobiliario completo de bajo mesada, más alacena, horno y anafe colocados, baños con revestimiento en paredes, loza sanitaria de primeras marcas, bañera, placares completos con interiores, agua caliente por caldera, preinstalación de A/A y calefacción por radiadores (no incluye artefactos) • Proyecto: Edificio Duo Rio, con planta baja más 12 pisos de departamentos, 1 y 2 dormitorios, monoambientes, local comercial y cocheras. Ambientes cómodos. Puertas blindadas, accesos electrónicos, cámaras de seguridad. 2 ascensores. Terraza con solárium de uso común. • Ubicación: En pleno Barrio Abasto, a tan solo pocas cuadras de la zona gastronómica de Av. Pellegrini y cercano a las mejores facultades de Rosario. • Observación: Opcional de cochera. Adhesión al Fideicomiso por escritura publica. Entrega prevista para Marzo 2026. Financiación. Ultimo piso. NOTA: Las medidas informadas incluyen el 50% de los muros medianeros y el 100% de los muros interiores. Todas las fotos publicadas son propiedad intelectual de Vanzini Black S.A. No es permitida su utilización comercial. Las medidas y superficies expuestas son estimativas y a corroborar con sus respectivos planos y títulos. La publicación de este inmueble es a solo título informativo, la venta de la propiedad está supeditada a que el propietario cumplimente el trámite ante la AFIP para la obtención del Número de COTI correspondiente. La información no es contractual. Si querés saber el valor de tu propiedad, contactate con nosotros y tasamos tu propiedad en 48hs.

Aviso en papel

3505 DEPARTAMENTOS DE 3 DORMITORIOS (comp./venta)
VANZINI PROPIEDADES: Entre Rios 1930 '12A u$s255000 (3413507070)
Edición: 12 Abril 2026- Identificador: #3078697

Ubicación

Entre Rios 1930 '12A - Rosario

Otras propiedades

Suscribite a nuestro Newsletter

Dejanos tu e-mail! Recibí ingresos de nuevos inmuebles, propiedades relacionadas con tus búsquedas y novedades del sector inmobiliario.