Departamento en venta 1 dormitorio - Parque España en Inmuebles La Capital
+54 341 5329022Lunes a viernes de 9 a 18 hs.

Departamento en venta 1 dormitorio - Parque España

Departamento en Venta Catamarca y España - Rosario

44 M2 1 1 -- 100000

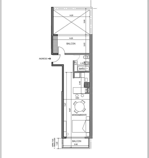
Departamento de un dormitorio al frente ventilacion cruzada. Recibidor, Cocina completa semiintegrada con bajo mesada y alacena, artefactos de primera calidad. Conexión de gas natural. Pisos de porcelanato en todos los ambientes. Gran balcón al frente con acceso desde living. Código del inmueble: CBU51893 AP7513846 Encontrá todas nuestras propiedades en: cccarlachiani. com. ar C.I. Mauro Carlachiani Mat. N° 280 *Toda la información y medidas provistas son aproximadas y deberán ratificarse con la documentación pertinente y no compromete contractualmente a nuestra empresa. Los gastos (Expensas, API, TGI, AGUAS, etc.) expresados, refieren a la última información recabada y deberán confirmarse. Fotografías no vinculantes ni contractuales.

Aviso en papel

3503 DEPARTAMENTOS DE 1 DORMITORIO (comp./venta)
A Aba CC CARLACHIANI Negocios Inmobiliarios: CATAMARCA Y ESPAÑA u$s100000 (4473658 3413395210)
Edición: 24 Mayo 2026- Identificador: #3078021

Ubicación

Catamarca y España - Rosario

Otras propiedades

Suscribite a nuestro Newsletter

Dejanos tu e-mail! Recibí ingresos de nuevos inmuebles, propiedades relacionadas con tus búsquedas y novedades del sector inmobiliario.